Listing Tools

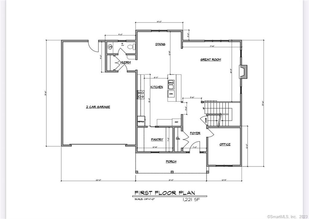
New Home being built! This home will be ready in 2025! This home is being built on homesite 3 on map. Customizations available. Home will take 9-10 months to complete. Home plan features 4-5 beds & 3 baths. Home features extra deep two car garage attached garage with storage area, large foyer leading into open floor plan- expansive kitchen w/ large center island abutting dining space and large living room filled plenty of natural light. Primary Bedroom offers walk in closet with full bath and large tiled shower. (Master bath and certain features can be altered to buyers needs/wants) NO COST choice of hardwood flooring in main living areas, 5" baseboard trim throughout, painted kitchen shaker style cabinetry, choice of granite countertops for kitchen and baths, kitchen appliance allowance package, comfort height toilets, crown molding in select areas, exterior flood lights, underground utilities,generous allowance for flooring, lighting, and masonry, LED overhead lighting, choice of interior paint colors** HIGH Efficient natural gas heating, tankless hot water heater, city water and sewer, foundation waterproofing. Home comes with builder warranty. Please note: photos shown may include options not included in price such as: full metal roof, expanded rear porch, custom garage doors and windows. These options are available but an additional cost is required

Property Details of 8 Stella Drive, Griswoldville

Map Location

Driving Directions

Wethersfield, CT Demographics

There is no data available

Wethersfield, CT Real Estate Market Data

There is no data available

Wethersfield, CT Schools

School NameDistanceTypeGrades
Listed by Nikki M. Defrancesco of Coldwell Banker Realty ((203) 577-7308)

The data relating to real estate for sale on this website appears in part through the SmartMLS Internet Data Exchange program, a voluntary cooperative exchange of property listing data between licensed real estate brokerage firms, and is provided by SmartMLS through a licensing agreement. Listing information is from various brokers who participate in the SmartMLS IDX program and not all listings may be visible on the site. The property information being provided on or through the website is for the personal, non-commercial use of consumers and such information may not be used for any purpose other than to identify prospective properties consumers may be interested in purchasing. Some properties which appear for sale on the website may no longer be available because they are for instance, under contract, sold or are no longer being offered for sale. Property information displayed is deemed reliable but is not guaranteed. Copyright 2025 SmartMLS, Inc.

Hi there! How can we help you?

Contact us using the form below or give us a call.

Send Us A Message:

I agree to receive marketing and customer service calls and text messages from Park Square Realty. To opt out, you can reply 'stop' at any time or click the unsubscribe link in the emails. Consent is not a condition of purchase. Msg/data rates may apply. Msg frequency varies. Privacy Policy.

Do not fill in this field:

This site is protected by reCAPTCHA and the Google Privacy Policy and Terms of Service apply.

Hi there! How can we help you?

Contact us using the form below or give us a call.

Send Us A Message:

Do not fill in this field:

This site is protected by reCAPTCHA and the Google Privacy Policy and Terms of Service apply.

Hi there! How can we help you?

Contact us using the form below or give us a call.

Send Us A Message:

Do not fill in this field:

This site is protected by reCAPTCHA and the Google Privacy Policy and Terms of Service apply.

Do not fill in this field:

This site is protected by reCAPTCHA and the Google Privacy Policy and Terms of Service apply.

Do not fill in this field:

This site is protected by reCAPTCHA and the Google Privacy Policy and Terms of Service apply.

Do not fill in this field:

This site is protected by reCAPTCHA and the Google Privacy Policy and Terms of Service apply.

$

Do not fill in this field:

This site is protected by reCAPTCHA and the Google Privacy Policy and Terms of Service apply.